本日はグランクレールあざみ野の
空室ルームツアーです。
今回は3階のお部屋をご紹介。
こちらのお部屋、少々珍しい形のお部屋となっております。
ご検討中の方は必見です👀
玄関を入るとすぐに
右側に広々としたシューズボックスがございます。

廊下を進むと、クローゼットがございます。
お部屋に置くと生活感が出てしまう物も、まとめて収納できるので
家がスッキリ見えます。

そのまま廊下を進むとお待ちかねのリビングです。
リビングは台形のように広がりのあるユニークな形状になっており
空間に動きが生まれてゆとりを感じられる造りです🌟
まっすぐな四角の部屋には無い奥行きや変化があり
家具のレイアウトをしやすいのが特徴です。
お部屋に開放感が生まれる点も魅力です🏠

リビングには、普段着やアウターなど
日常使いの衣類を収納できるクローゼットがあります。

ベランダからは
グランクレールあざみ野自慢の中庭が一望できます🌞
とても眺めのいいお部屋です。

リビングの奥を進むと、
キッチン・洗面台・お手洗い・バスルーム🍳🚽🛁
全ての水回りが一つのスペースにまとめられています。

キッチンは左手にシンクとIH2口コンロを備えた使いやすい配置となっております。
冷蔵庫のほかに、食器棚などを配置できるスペースがございますので
自炊をされる方にもおすすめです。

洗面とお手洗いの間に仕切りが無いので
ドアの開閉の手間が無く、スムーズに行き来できます。
手すりも設けているため、立ち上がりや移動が安定しやすく、
毎日の動作がより安全で負担の少ないものになります。
日常の「ちょっとした動作」が楽になる、優しい設計です。

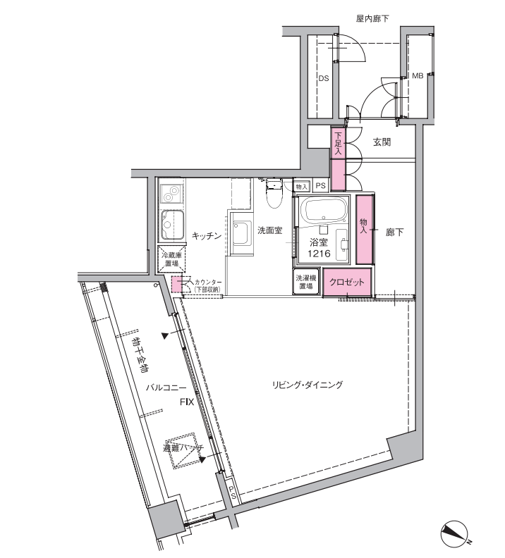
間取り図はこちら🎵

実際にご見学いただくことも可能です。
ぜひ、お気軽にご連絡くださいませ。
🍃グランクレール 入居相談室🍃
受付時間 9:00-17:00(水曜定休)
☎0120-109-305
※掲載内容は現時点の情報です。
ご紹介中に成約となる場合がありますのでご了承ください。
🎵ご案内🎵
その他の空室や申込いただきましたお部屋もご紹介しております💁
画像をクリックしていただきますと、各種ページに移動しますので
併せてご覧ください🌟


